優質內容 來源:好色先生视频泵業 作者:好色先生视频小編 發布時間:2023-07-28 15:13:45 閱讀次數: 收藏:23 分享:11
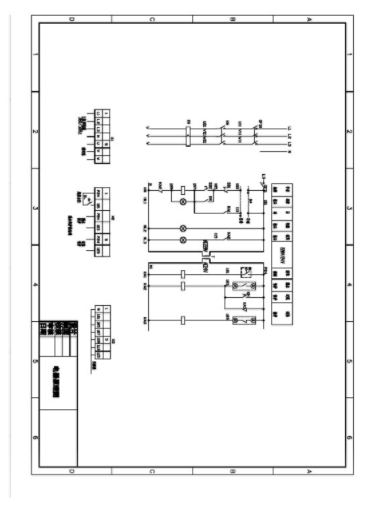
選用水銀接點浮球,需用兩隻。若選用磁性浮球,則隻需一隻,接法是:將浮球開關接入Y1 Y2端子即可。
若選用水銀接點浮球,需要三隻。
若選用磁性浮球,則隻需兩隻,接法是:先將Y1、Y3短接,在將起泵、停泵共用浮球接入Y1、Y2端子,將備用泵浮球接入Y1、Y4端子。如果該型控製器控製其它類型水泵,即沒有漏水、溫度信號線的水泵,則隻須將漏水、溫度信號線端子懸空,不接任何線路即可,否則該控製器不能正常工作。

傳感器通常選用設置上、下線的電接點壓力表(如YX係列),也可選用上限、下限獨立的兩隻電接點壓力表或壓力繼電器。當壓力降壓下限壓力時,P0、P1接通,水泵起動,壓力升至下限壓力時,P0、P2接通,水泵停止工作。
傳感器通常選用壓力表式設置上、下限的電接點溫度表,也可選用其他溫度調節儀。當溫度達到上限設定值,T0、T2接通,水泵開始工作。當溫度降壓下限設定值,T0、T1接通,水泵停止工作。
如果需要易地操作,將K1、K2接常閉(停止)按鈕,K3、K4接常開(啟動)按鈕。若不需易地操作,先將K1、K2短路,K3、K4開路,這樣水泵則由控製櫃麵板按鈕操作。如果需要先開水泵,後開機組,則將聯機常開觸點K5、K6串入空調機組的控製回路。
消防噴淋泵有消防控製器輸往消防中心的遙控按鈕信號線及各分泵泵開、泵停信號接點。
以上就是自吸好色网站在线观看廠家為大家提供的內容,希望能夠對大家有所幫助!
本文標簽:
本文參考資料來源: 中國泵閥網 泵閥商務網 自吸好色网站在线观看廠家 中國知網